Komfortables Ferienhaus im Südschwarzwald

Interessantes zu unserem Haus 27:

Hier einige wichtige Daten zum Haus 27 im Feriendorf Öfingen:
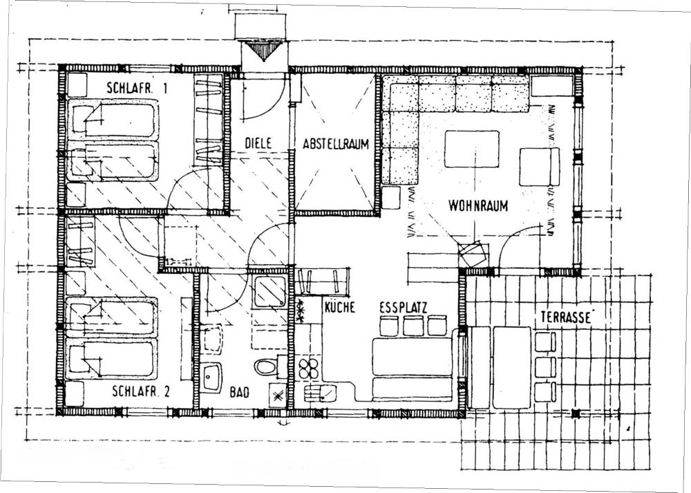
die Wohnfläche beträgt 90 qm, Küche, Wohnzimmer, 2 Schlafzimmer,
eine "Koje", die speziell bei Kindern ab 4-5 Jahren beliebt ist
(erreichbar vom Flur über eine ausklappbare Leiter),
Bad mit Dusche und Toilette, eine zweite Toilette, Abstellraum,
Terrasse mit fantastischem Ausblick. Und für viele Gäste wichtig:
Insektenschutz an den Fenstern der Schlafzimmer und Bad / Toiletten.

Hier einige Bilder:

Wohnzimmer mit Sitzgruppe und buntem Teppich

Das ist das Wohnzimmer.

Der Grundriss eines Typs Robinson
Küche mit Einbauten und Esstisch

Die Küche mit Elektroherd, Mikrowelle, Spülmaschine und ...
Esstisch in der Küche

... 12-teiligem Geschirr und großem Esstisch, .
Schlafzimmer mit Doppelbett

Das eine Schlafzimmer mit Doppelbett ...
Zweites Schlafzimmer mit zwei Einzelbetten

... das zweite Schlafzimmer mit zwei Einzelbetten.
Bad mit Waschtisch (links), rechts in der Mitte Toilette und rechts vorne die Dusche

Bad mit ebenerdiger Dusche und Toilette ...
Zweite Toilette (Mitte hinten) und Waschtisch rechts...

... und die zweite Toilette.
Die Koje untger dem Dach mitzwei Betten und einem Tisch mit zwei Kinderstühlen

Die Koje im ausgebauten Dachstuhl
mit zwei Schlafmöglichkeiten.
Blick vom Sessel aus in die weite Landschaft

Blick vom Sessel in die Landschaft